行业动态

了解最新公司动态及行业资讯

受污染热解脱附土壤修复设备及方法

2018-07-04 02:19:49 153 编辑:admin 来源:本站
      生物土壤修复是指在一定的条件下,利用土壤中的各种微生物,植物和其它生物吸收,降解,转化和去除土壤环境中的有毒污染物,使污染物的浓度降低到可接受的水平,或将其转化为无毒无害的物质,但处理过程相当的漫长,同时不是所有受污染的土壤都适合此类方法,热处理法是将受污染的土壤在高温进行热处理,但传统的热处理方式是焚烧,直接用高温气化方式,这种方法能耗高,容易造成二次污染。为了解决这种不足,一种受污染热托附的土壤修复设备修复系统出现了,该系统采用热托附装置是由直接加热的,这种方法能耗高,并容易产生挂焦,而且容易造成二次污染。
 
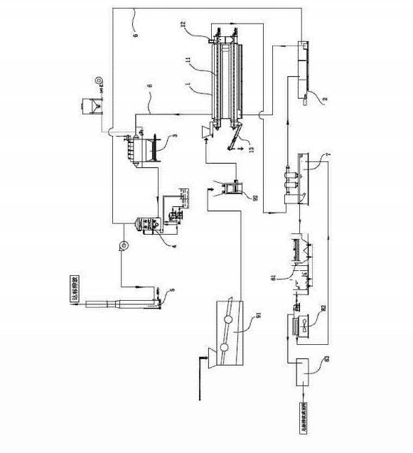
 受污染热解脱附土壤修复设备
     受污染热解脱附土壤修复设备及方法。该受污染土壤热解脱附修复设备包括热解脱附处理单元、气相产物处理单元、液相产物处理单元;热解脱附处理单元为热解脱附炉;气相产物处理单元包括燃烧室、烟气除尘装置、喷淋装置、烟气排放口,燃烧室、热解脱附炉的加热层、烟气除尘装置、喷淋装置之间通过烟道形成有循环回路;液相产物处理单元用于处理热解气经由三相分离装置后得到的气相产物。该受污染土壤热解脱附修复设备及方法的处理效果好,而且不易挂焦、不产生二次污染。

30

装备制造经验

立即免费获取土壤修复方案

为用户提供及时、高效、便捷的服务

在线咨询
AG亚游环境希望与你携手,共创美好未来...
5